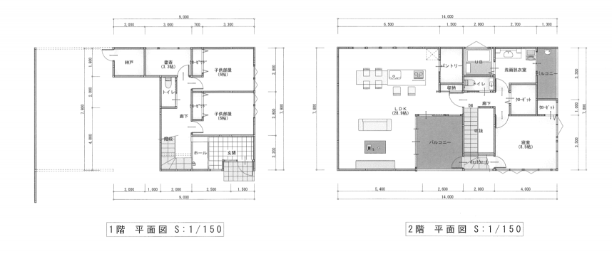
広々リビングのガレージハウス
5台以上の駐車スペース確保のため、木造でありながら8m間口の駐車場を作成
お客様の要望、目的
たくさんの日の光を取り入れて木のぬくもりも感じる暖かい家
明るく開放的な空間、幾何学的な外観
大きな窓、テラスと一体化する広いLDK
家族で、親戚や友達家族と一緒に、楽しい時間が過ごせる家
当初、子供部屋を作るリフォームを検討していたが、全体費用を見据え、結果建替えに。
思い描く家が形になり大満足
| 概要 | 工期:2020年2月~9月 |
|---|---|
| 種別 | 木造2階建て |
| 場所 | 豊田市 |
| 家族構成 | 夫婦 + 子供2人 |
