新築・増築



 


お客様の要望、目的


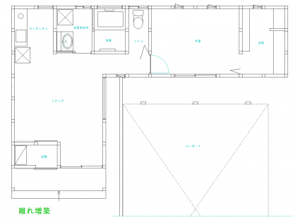
駐車場(カーポート)に触れず増築したい
お互いのプライベートを守りながらも、スムーズに行ったり来たりしたい


玄関


シューズラック


廊下を作らずリビングから部屋続きに

   


リビング

ご両親と同居中の弟様に離れをご希望とのことで
距離感のちょうどよいシンプルな家に。

お客様のご意向に沿い、
現況の建物に影響のない配置と設計にしました。

内装は落ち着きのあるブラウン調で統一しました。

   


ミニキッチン


浴室


造作棚で収納も楽々

  


クリックで拡大


      嬉しいお声をいただきました!


種別 木造
場所 豊田市
工期 2022年4月~7月 (約3か月)
工事価格 約1340万円