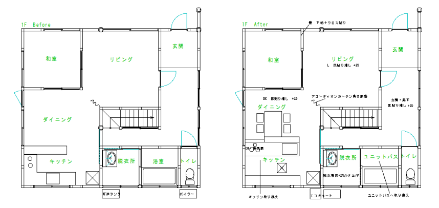
水回りのリフォーム
給湯器の老朽化をきっかけにリフォームを行う
ことになりました
給湯器の交換はもちろん、
浴室を暖かなユニットバスへ、
キッチンの老朽化も気にされていたため、
同時にキッチン改修も行いました
浴室には手すりを取り付け、浴室~洗面~廊下の
段差も解消するバリアフリー改修も行ったので安心です
対面キッチンに変更することで、壁面に収納をたっぷり備え付けることもができました
カウンター越しにダイニングの様子も見えます
床も張替えたのでキッチンと統一感も生まれ、新しいキッチンでのお料理が楽しくなりそうです



概要 | 給湯器の交換、 浴室リフォーム(ユニットバス、手すり、段差、窓)、 対面キッチンリフォーム(コンロ、換気扇、水栓)、 床の張替え、給湯器交換、和室・2Fクロス張替え |
---|---|
種別 | 木造 |
場所 | 豊田市 |
工期 | 2023年12月-20224年1月(約2カ月) |
工事価格 | 約500万円 |