耐震工事を兼ねたほぼ全面リフォーム
耐震性を不安に思い、耐震工事を行うことになり、それに伴い床材や壁紙、建具も新調するリフォーム工事となりました。
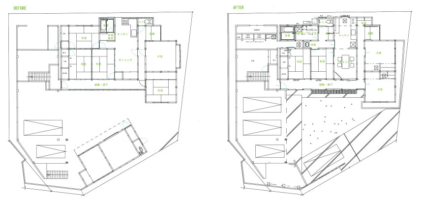
リビングや和室から遠かった玄関横のトイレを移動。水廻りを集約し、古くなってきた水廻りも一新しました。
窓は気密性の高い高性能なものにサッシから取り替え、外気温による暑さ寒さを和らげる効果が期待できます。
また玄関、勝手口も同様のものに新調しました。
外窓にはシャッターまたは面格子を取付け、防犯面でも安心です。
キッチン
洋室
玄関手すり取付
リフォームは、器具交換、ドア・窓交換、手すり取付、段差解消、給湯器交換などを行ったため、
住宅省エネ2024の補助金の申請を行いました。
耐震工事は新基礎、壁の追加、柱の追加、金具の追加などを行います。
耐震工事は岡崎市の補助金の申請を行いました。
外壁を貼り、外構工事も行ったため、外観も見違えるように変身しました。
| 種別 | 木造 |
|---|---|
| 場所 | 豊田市 |
| 工期 | 2024年4月~10月(約7ヵ月) |
| 工事価格 | 約2150万円 |
