リノベーション


Before

 




こだわりのつまった家族のための家

グレーを基調に白と木調で統一感を
大きな窓と照明にもこだわって暖かい空間に。

ポーターズペイントを使用し、
お施主様自ら塗って描いて
世界にひとつだけの家族のための家に。





 



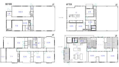
親世帯と同居のための全面改修
外観の庇やバルコニーの手摺りなど意匠的なおさまりにもこだわりました
ご希望の薪ストーブも設置
デザイン設計事務所による設計を元に理想の住まいが完成しました


概要 リノベーション(全面改修)
種別 鉄骨2階建て
場所 安城市
工期 2019年12月~2020年6月(約6カ月)