横屋を利用した2世帯住宅
息子家族との同居に向け、横屋を利用して
2世帯住宅にすることに。
流行りの回遊動線を取り入れ、家事動線も
ご要望通りの快適な新居に。
階段の勾配もなるべく緩くデザインしました。
線路に近い立地のため、開口部の防音対策をしっかりと行い、震動対策のため床下地で軽減できるよう床材などの材料も厳選して完成しました。
LDK→洗面・脱衣所→ランドリースペース→階段ホール→LDKと回遊動線に
LDK→ファミリークローゼット→ランドリールーム→物干しテラスの移動も可能です
ランドリールームには洗濯機横に作業台、収納棚も作り付けました
キッチン奥にはパントリー、在宅ワーク用のワークスペースも設け、使い勝手抜群です
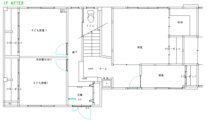
1階には階段を挟んで子供部屋と寝室を設け、
プライベート空間もしっかり確保
収納スペースも各部屋に十分取れました。
トイレも新設しました
| 概要 | リノベーション(全面改修) |
|---|---|
| 種別 | 木造・鉄骨2階建て |
| 場所 | 豊田市 |
| 工期 | 2022年11月~2023年3月(約6カ月) |
| 工事価格 | 約2700万円 |
