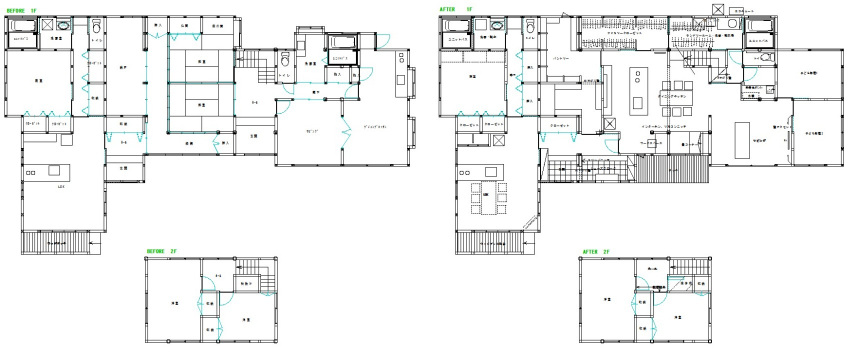
希望叶えた2世帯住宅
息子世帯との同居も孫の成長と共に手狭になり、
母の住む母屋と増築エリアを住み替えることに。
息子世帯が母屋を使うことで広いLDK+子供部屋を実現しました。
家事動線にこだわり、広い収納スペースも確保。
間取りの邪魔をしない階段位置にし、新たに水槽部屋も作り趣味も楽しめる家に。
耐震対策もしっかり行い、安全で快適な家に生まれ変わりました。
嬉しいお声をいただきました!
| 概要 | リノベーション(増改築) |
|---|---|
| 種別 | 木造2階建て |
| 場所 | 豊田市 |
| 工期 | 2022年10月~2023年4月(約6カ月) |
| 工事価格 | 約2200万円 |
